*ZUKUNFTSORIENTIERTE KAPITALANLAGE*GERÄUMIGE 2-RWG*Tageslichtbad mit Badewanne & Balkon*WE 03 VH*

Sebastian-Bach-Straße 30, 04109 Leipzig, Erdgeschosswohnung zum Kauf

Anlagen / Links

Kontaktdaten

Objektdaten

  • Objekt-ID
    164838450
  • Objekttypen
    Erdgeschosswohnung, Wohnung
  • Adresse
    Sebastian-Bach-Straße 30
    04109 Leipzig
  • Etage
    EG
  • Etagen im Haus
    4
  • Wohnfläche ca.
    64,28 m²
  • Zimmer
    2
  • Schlafzimmer
    1
  • Badezimmer
    1
  • Heizungsart
    Zentralheizung
  • Wesentlicher Energieträger
    Gas
  • Baujahr
    1900
  • Letzte Modernisierung
    1999
  • Zustand
    teilsaniert
  • Ausstattung
    Standard
  • Käufer­provision
    3,57% inkl. 19% MwSt. auf den Gesamtkaufpreis inkl. MwSt.
    3,57 % Käufer-Provision inkl. MwSt. verdient und fällig bei notarieller Beurkundung. Wir haben einen provisionspflichtigen Maklervertrag in gleicher Höhe mit dem Verkäufer abgeschlossen, § 656 c BGB.
  • Hausgeld
    278,12 EUR
  • Kaufpreis
    225.000 EUR

Ausstattung / Merkmale

  • ✓ Balkon/Terrasse
  • ✓ Garten/Gartennutzung
  • ✓ Keller

Energieausweis

  • Energieausweis
    nicht erforderlich

Objekt­beschreibung

Beschreibung

Die hier angebotene 2 Raum Wohnung, befindet sich in einer sehr beliebten und ruhigen Lage. Bei der Sanierung wurde insbesondere auf die Erhaltung historisch wertvoller architektonischer Details Wert gelegt. Die umfassende Sanierung und Modernisierung des Objektes erfolgte im Jahr 1999/2000, seither wurde das Objekt mit viel Engagement in Stand gehalten.

Ausstattung

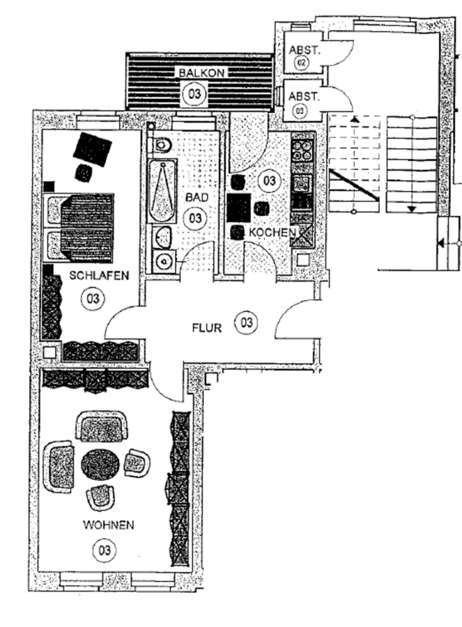
2-RWG im EG - Vorderhaus

  • 1 Schlafzimmer
  • 1 Wohnzimmer
  • 1 Tageslicht mit WC, Wanne und WM-Anschluss
  • 1 Flur
  • 1 Küche
  • 1 Balkon
  • 1 Keller

Bodenbelag:

  • Laminat in allen Wohnräumen
  • Fliesen in Küche und Bad

Allgemeine Angaben zum Objekt:

  • Treppenhausreinigung durch eine Fachfirma inkl.

24-Stunden Notruf

Die Wohnung ist seit dem 01.06.2025 vermietet. Die Kaltmiete beträgt 771,00 € zzgl. der Nebenkosten in Höhe von 204,00 €.

Sonstiges

Weitere Angebote entnehmen Sie bitte unserer Homepage http://www.ivk-immobilien.eu. Gern bearbeiten wir Ihren Wunsch.

Die von uns gemachten Angaben zum Grundstück beruhen auf den uns erteilten Informationen durch Dritte, insbesondere durch den Eigentümer. Eine Haftung für die Richtigkeit und Vollständigkeit der Angaben wird daher nicht übernommen. Der Empfänger des Exposés muss alle Angaben des Exposés vor Abschluss eines Kaufvertrages selbst auf ihre Richtigkeit hin prüfen. Die Wohnungsgröße gilt nichts als zugesicherter Vertragsgegenstand.

Lage

Das Objekt befindet in sehr ruhiger und etablierter Wohnlage im Zentrum-West, nur wenige Gehminuten vom Leipziger Stadtzentrum entfernt. Das Quartier zeichnet sich vor allem durch die Vielzahl an herrschaftlichen Jugendstilhäusern, die durchweg hochwertig saniert wurden, die exklusive Wohnatmosphäre und Lebensqualität sowie die Nähe zur Innenstadt aus. Insbesondere die erstklassige Infrastrukur im Viertel, geprägt durch kleinteiligen Einzelhandel, die exzellente Anbindung an den öffentlichen Nahverkehr sowie Schulen und Kindertagesstätten in Laufweite, machen diese Lage für Familien so wertvoll. Nicht zu vergessen die Nähe zu den vielen Naherholungsgebieten und Parks der Stadt, wie dem Clara-Zetkin-Park, dem Auewald und dem Zoologischen Garten.

Sie sehen gerade einen Platzhalterinhalt von Google Maps. Um auf den eigentlichen Inhalt zuzugreifen, klicken Sie auf die Schaltfläche unten. Bitte beachten Sie, dass dabei Daten an Drittanbieter weitergegeben werden.

Mehr Informationen

Direktanfrage

* Pflichtangaben
 SSL-verschlüsselt
Darstellung der Immobilien mit WP-ImmoMakler und Daten aus

Compare